Studio\
Woodroffe\Papa\

Deep Urban Blocks Offer Alternative Inner-city Experience

In the heart of Breda, Molsparking has long existed as an inner block parking area, a hidden void within the historic city fabric. SWP was invited, alongside two other firms, to reimagine this site through a closed competition. Our proposal transforms the space into a distinctive residential neighbourhood that celebrates discovery and offers new ways of living in the historic centre.

The design introduces seven residential blocks, carefully arranged to balance density with sensitivity to the surrounding context. By concentrating mass where depth and height are possible and softening volumes at the edges, the scheme achieves efficiency while maintaining harmony with adjacent landmarks such as the church, the former post office, and the historic stables. Strategic variations in height frame key views and ensure smooth transitions to the finer grain of the old city.

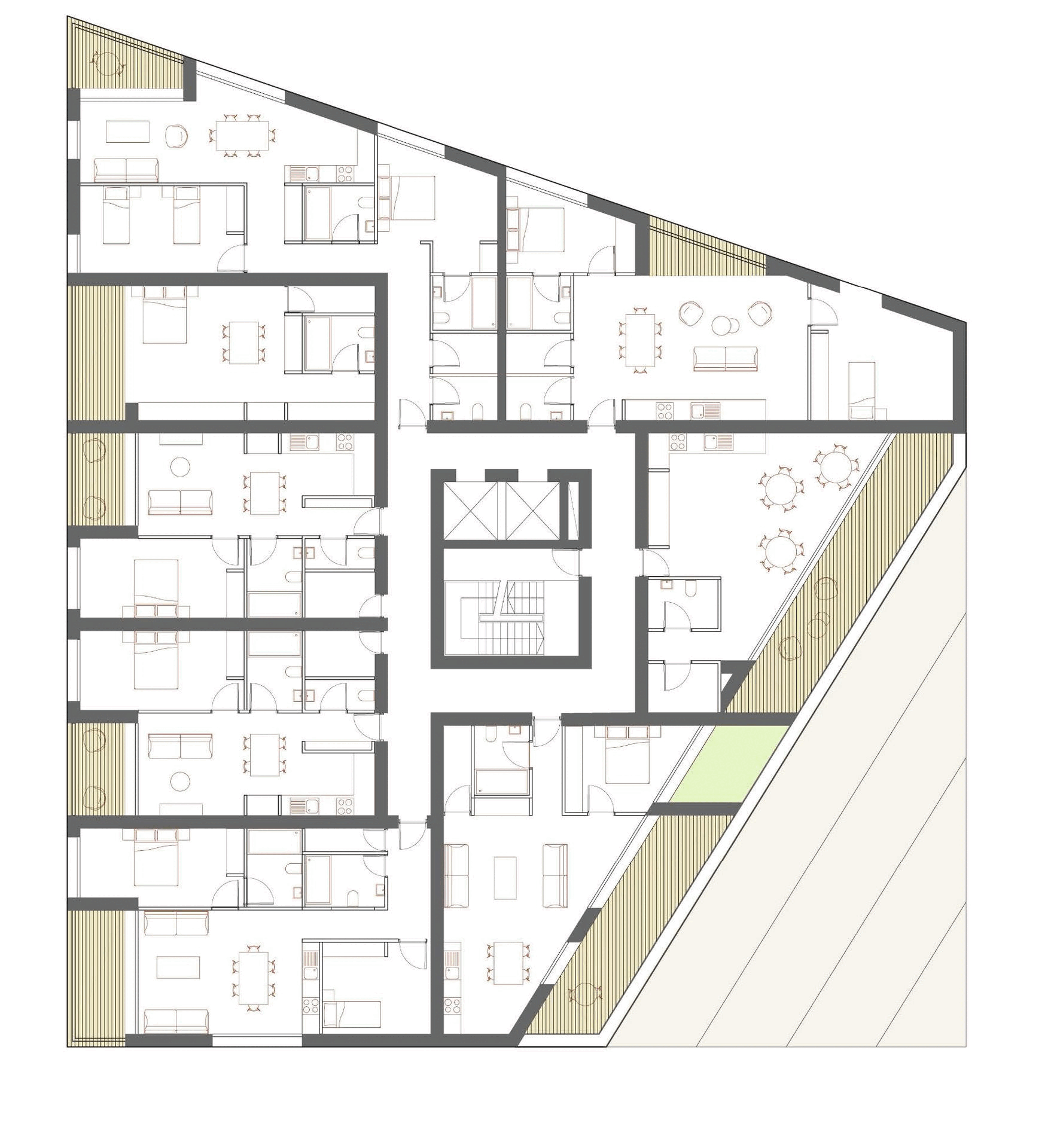
At the heart of the plan lies a generous plaza, accessible through narrow passageways that preserve the sense of wonder when moving from the busy streets into a calmer inner world. Garden-like spaces reference the neighbouring botanical garden, creating a setting of respite and community that contrasts with the consolidated edges of the block.

The housing typologies are diverse, combining ground floor duplexes with upper level apartments of varied sizes, many with generous terraces shaped by chamfered roofs. This interplay of volumes creates a rich and distinctive character, blending efficiency with liveability. Graffiti on site was preserved, while the ground-floor areas linked to the busier routes across the site present live/work opportunities and other social and civic amenities that could complement Breda’s central offer.

Molsparking
NL, Breda
Client
BPD Bouwfonds Gebiedsontwikkeling and Dura Veermeer
Programme
23.500 m2 housing\
255 parking spots\
295m2 Workspace\
897 m2 Commercial space\
300 m2 Bike Parking\
Site area: 1.2 ha\
Workscope: Concept Design\
Status: Competition

Deep Urban Blocks Offer Alternative Inner-city Experience